Encuentra el espacio ideal...
La zona donde se encuentra el terreno está experimentando un auge en la construcción de edificios de departamentos, gracias a su ubicación céntrica y la creciente demanda de vivienda. El terreno tiene un gran potencial para el desarrollo de un proyecto inmobiliario, con posibilidades de remodelar completamente o construir un edificio de departamentos modernos, en ambos casos maximizando el uso del espacio y mejorando la fachada para adaptarse a tendencias actuales.


Nogal uno. cuatro cero


Estado Actual
El predio ubicado en Nogal 140, Santa María la Ribera, Cuauhtémoc, 06400, CDMX, presenta una fachada de estilo tradicional, con un edificio de dos niveles de color blanco y detalles en rojo en los bordes de los techos y ventanas. La estructura cuenta con ventanas rectangulares en el segundo nivel y una ventana grande en el primer nivel, todas con rejas de protección. En el acceso principal, se observa un arco característico que añade un toque distintivo a la fachada. El entorno está enmarcado por árboles que aportan un ambiente natural y agradable.
Vias de acceso: Circuito interior
Para llegar a este predio, puedes tomar la avenida principal más cercana (circuito interior) y luego girar hacia la calle Nogal. La forma más rápida de llegar es mediante el Metro, utilizando la estación San Cosme o Normal (Línea 2), desde donde puedes caminar unos 15 minutos hasta el número 140. También puedes tomar autobuses como las líneas 107, 108 o 110 que pasan cerca, o usar un taxi/Uber para llegar directamente
El Predio no presenta restricciones referente a las areas de conservacion patromonial. el uso de suelo es habitacional mixto, se pueden construir 4 niveles con un porcentaje de area libre de 25%
OBSOLECENSIA DEL INMUEBLE
1.El inmueble presenta humedades en muros
2.Falta de mantenimiento general en todas las areas
3.Requiere cambio de cableado electrico
4.Requiere cambio de tuberias hidraulicas
5.Requiere cambio de tinacos
6.Resanes generales en muros
7.Pintura general
CARACTERISTICAS ARQUITECTONICAS
Muros de tabique
Aplanados de yeso
Herreria metalica
FACHADA MINIMALISTA
- Diseño simple y limpio: Líneas rectas y formas geométricas básicas.
- Colores neutros: Blanco, gris, beige o tonos pastel.
- Materiales básicos: Concreto, vidrio, acero o madera.
- Ventanas grandes: Para aprovechar la luz natural.
- Acceso principal definido: Puerta simple o doble, con o sin detalles.
- Sin ornamentación excesiva: Elementos decorativos mínimos o ausentes.
- Integración con el entorno: Adaptación al contexto urbano o natural.


Nuestra Propuesta Arquitectónica
FACHADA PRINCIPAL


PLANTA BAJA ESTACIONAMIENTO
LOBBY
ESTACIONAMIENTO 15 LUGARES
ESCALERAS
Se generan 15 lugares de estacionamiento , en este espacio se ubicara el lobby de acceso y el area de escaleras para el acceso a los departamentos, en esta area se encontrara el area libre del 25% , misma que podra ser area verde






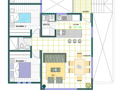
1ro-4to NIVEL


AREA DE DEPARTAMENTOS DE 2 RECAMARAS
AREA DE ESCALERAS
¡Descubre el edificio de departamentos de tus sueños!
Este moderno inmueble de 4 niveles es el equilibrio perfecto entre elegancia y funcionalidad, diseñado para quienes buscan vivir con estilo y confort en un entorno seguro y céntrico.
Al ingresar al edificio, te recibe un elegante lobby con escaleras que conectan los 3 niveles superiores, cada uno con 4 departamentos de alto nivel. Los departamentos cuentan con 2 recámaras, ideales para familias o profesionales que valoran la privacidad y el espacio.
Cada departamento incluye:
- Sala comedor amplia y luminosa
- Cocina moderna equipada con todos los elementos necesarios
- Área de servicio para una mayor organización diaria
- 1 baño completo , 1 1/2 baño
- Espacios diseñados para ofrecer confort y descanso de calidad
Además, el edificio cuenta con un piso de estacionamiento seguro y accesible, para que puedas disfrutar de tu hogar con total tranquilidad.
Este inmueble es perfecto para quienes buscan un lugar para vivir con diseño, amplitud y ubicación estratégica. ¡No te pierdas la oportunidad de hacer de este espacio tu nuevo hogar!








AZOTEA


AREA DE AZOTEA
1 ROOF GARDEN
El roof garden es un espacio diseñado para transformar la azotea de los departamentos en un oasis urbano. Este jardín en la azotea alberga diversas jardineras con plantas y flores que aportan un toque natural y relajante al ambiente. El espacio incluye áreas de mesas, ideales para disfrutar de comidas al aire libre o reuniones sociales, creando un ambiente acogedor para los residentes.






Contacto
Si tienes alguna pregunta o necesitas más información, no dudes en contactarnos. Estamos aquí para ayudarte en todo lo que necesites. Puedes comunicarte con nosotros a través de nuestro número de teléfono o enviarnos un correo electrónico. Nuestro equipo de atención al cliente estará encantado de resolver tus dudas y brindarte la información que necesitas. No importa cuál sea tu consulta, estamos disponibles para ti. Así que no dudes en ponerte en contacto con nosotros, estaremos encantados de asistirte.
DIRECTORIO
BIENES RAICES LIC. ALEJANDRO ORTIZ
Nuestras Paginas
ARQUITECTURA ARQ. LEONARDO VARELA
GESTION INTEGRAL LIC. ERNESTO HIDALGO
